Baranówka w Rzeszowie zyska nową, zieloną przestrzeń rekreacyjną. Dzięki współpracy mieszkańców i miejskich instytucji powstaje projekt, który ma szansę stać się jednym z ulubionych miejsc spotkań w mieście.
To inicjatywa, w której lokalna społeczność naprawdę ma wpływ na kształt przestrzeni miejskiej.
Mieszkańcy projektują przyszłość osiedla
„Kochani Sąsiedzi! Baranówka i Zarząd Zieleni Miejskiej w Rzeszowie robi kolejny krok w stronę pięknej, zielonej przestrzeni spotkań” – napisał radny Rady Miasta Rzeszowa, Mateusz Maciejczyk, podkreślając zaangażowanie mieszkańców w całe przedsięwzięcie.
Nie jest to pomysł z biurka, lecz efekt wielomiesięcznej pracy i konsultacji, w których wzięli udział mieszkańcy miasta, członkowie Rady Osiedla Baranówka i przedstawiciele Zarządu Zieleni Miejskiej w Rzeszowie. To właśnie ta instytucja odpowiada za projektowanie i realizację przedsięwzięcia.
Wsparcia udzielili też młodzi architekci krajobrazu z Uniwersytetu Rzeszowskiego, którzy przygotowali aż cztery koncepcje zagospodarowania terenu po szczegółowych badaniach w terenie i konsultacjach z mieszkańcami. „Tak, naprawdę słuchamy tego, jak ludzie chodzą po tym miejscu i czego potrzebują” – dodał Maciejczyk.

Aleja Wiśniowa i miejsce grillowe
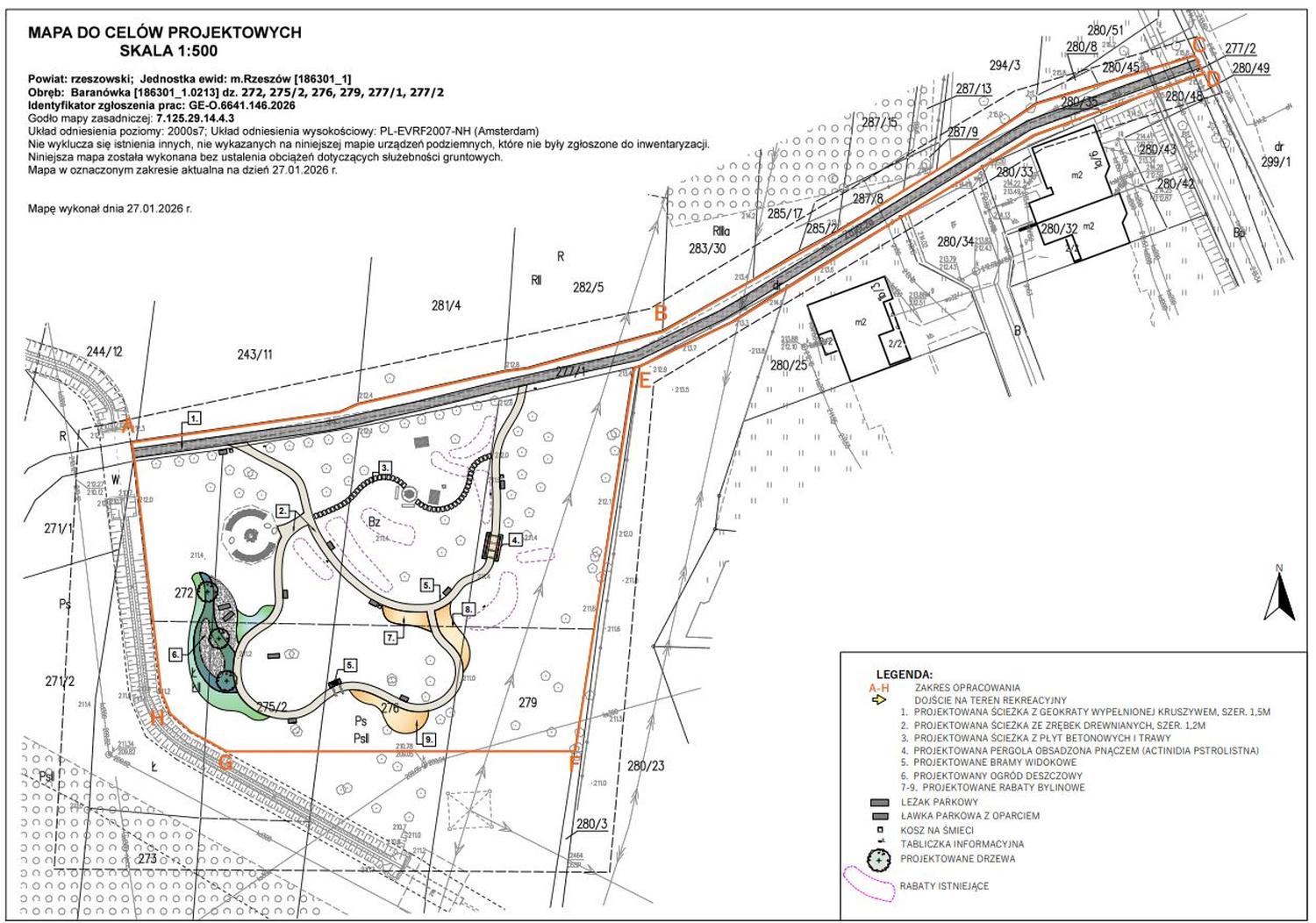
Pierwsze prace rozpoczną się przy ul. Zajęczej, ale projekt zakłada docelowe zagospodarowanie ponad dwóch hektarów zieleni aż do ul. Tarnowskiej. Mieszkańcy mogą liczyć na przestrzeń przyjazną do codziennego użytkowania. W planach są ścieżki spacerowe, pergole z pnączami, ogrody deszczowe, rabaty bylinowe, ławki, leżaki, kosze i tablice informacyjne.
Najbardziej wyczekiwany etap w tym roku obejmuje teren przy palenisku i miejscu grillowym Warto podkreślić, że nowy, zielony teren rekreacyjny zwany „Aleją Wiśniową”, został wybrany przez mieszkańców w zeszłorocznej edycji Rzeszowskiego Budżetu Obywatelskiego. „To jest realna moc Waszych głosów!” – podkreślił radny.

Zielona przestrzeń dla wszystkich
Projekt Baranówki to przykład, jak współpraca miasta i lokalnej społeczności może zmieniać miejską przestrzeń. Nie tylko zwiększa komfort życia mieszkańców, ale też tworzy miejsce sprzyjające integracji i aktywnemu wypoczynkowi.
„Nie zwalniamy tempa. Dziękuję wszystkim, którzy dokładają do tego cegiełkę. Macie pomysły, co w kolejnych etapach powinno się pojawić tam jako pierwsze? Podoba się Wam sposób zagospodarowania tego miejsca?” – zachęcił do aktywności Maciejczyk.
Baranówka staje się dowodem na to, że oddolne inicjatywy, wsparte wiedzą specjalistów, mogą realnie zmieniać oblicze miasta. Już dziś mieszkańcy mogą śledzić postępy i współdecydować o tym, jak będzie wyglądało ich najbliższe otoczenie.



Czytaj więcej:
Targowisko „Balcerek” w Rzeszowie przeniesione w inne miejsce? Jest sprzeciw mieszkańców
Czytasz Rzeszów News? Twoje wsparcie pozwoli nam działać sprawniej.






![Groźny pożar na drodze wojewódzkiej. Ciężarówka z żywnością stanęła w płomieniach [ZDJĘCIA] pożar ciężarówki OSP Nawsie](https://rzeszow-news.pl/wp-content/uploads/2026/02/pozar-ciezarowki-OSP-Nawsie-218x150.jpg)








![Rusza budowa obwodnicy Tyczyna za niemal 57 mln zł. To brakujące ogniwo trasy pod Rzeszowem [MAPA]](https://rzeszow-news.pl/wp-content/uploads/2026/03/obwodnica-tyczyna4-218x150.jpg)
![Aquapark i “Park Przyszłości” w Rzeszowie. Miasto rusza z konsultacjami ws. inwestycji [WIDEO, ZDJĘCIA]](https://rzeszow-news.pl/wp-content/uploads/2026/03/aquapark-rzeszow3-218x150.jpg)
![Odnowiona hala sportowa w Rzeszowie już otwarta. Inwestycja kosztowała 450 tys. zł [ZDJĘCIA]](https://rzeszow-news.pl/wp-content/uploads/2026/03/hala-sportowa-sp16-rzeszow-218x150.jpg)















![Wyjątkowy tunel w powiecie rzeszowskim objęty ochroną. To turystyczna perełka [ZDJĘCIA]](https://rzeszow-news.pl/wp-content/uploads/2026/03/tunel-szklary1-218x150.jpg)



![Piękna zima i trudne warunki w Bieszczadach. Straż Graniczna i GOPR ćwiczyli na nartach [WIDEO, ZDJĘCIA]](https://rzeszow-news.pl/wp-content/uploads/2026/02/strazgraniczna-gopr-zima2026-bieszczady-218x150.jpg)








![Rusza budowa obwodnicy Tyczyna za niemal 57 mln zł. To brakujące ogniwo trasy pod Rzeszowem [MAPA]](https://rzeszow-news.pl/wp-content/uploads/2026/03/obwodnica-tyczyna4-324x235.jpg)