W samym centrum Rzeszowa, tuż obok historycznej siedziby Teatru Siemaszkowej, wyrośnie nowy gmach – niezależny, a zarazem integralnie związany z instytucją. Nowa Scena nie tylko poszerza możliwości artystyczne, ale też redefiniuje rolę teatru jako miejsca spotkań i miejskiego forum.
Nowa Scena Teatru Siemaszkowej wpisuje się w śródmiejską strukturę Rzeszowa, poszerzając funkcjonalność instytucji i otwierając ją na nowe scenariusze użytkowe. Realizacja projektu Plus 3 Architekci to nowy etap w historii teatru, który symbolicznie otwiera się na miasto oraz jego mieszkańców, stając się jeszcze ważniejszym punktem kulturalnym i jednocześnie ciekawą przestrzenią spotkań.
Nowa Scena Teatru im. Wandy Siemaszkowej
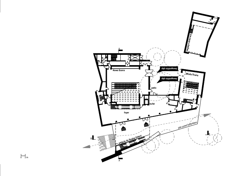
Nowa inwestycja nie będzie bezpośrednio połączona z istniejącym budynkiem. Okazuje się, że to niezależny budynek, położony obok głównej siedziby rzeszowskiego teatru. W założeniu autorów projektu z pracowni Plus3 Architekci powstanie tu przemyślana i elastyczna przestrzeń performatywna. Ma zintegrować teatr z otoczeniem i umożliwić realizację nieoczywistych wydarzeń artystycznych.
Choć nowy budynek nie jest bezpośrednio połączony z dotychczasową siedzibą teatru przy ulicy Sokoła, razem tworzą spójny, funkcjonalny zespół. Wejście do Nowej Sceny architekci zaprojektowali od strony Alei Cieplińskiego, czyli jednej z najbardziej uczęszczanych ulic miasta. To rozwiązanie ma zwiększyć dostępność teatru, którego nowy element w naturalny sposób wpisuje się w codzienny ruch pieszy i miejskie życie.
Wizualizacja: materiały prasoweNiełatwe, ale angażujące zadanie
– Jednym z głównych założeń projektu było zachowanie cennego drzewostanu, w tym dwóch wiekowych dębów, pomników przyrody rosnących na terenie inwestycji. Od początku wiedzieliśmy, że te drzewa muszą zostać. Projekt rozwijaliśmy wokół nich, dostosowując układ budynku do istniejącej zieleni – mówi Katarzyna Głażewska, architektka i współwłaścicielka pracowni Plus3Architekci.
Projektanci, zamiast forsować zwartą bryłę, zdecydowali się rozczłonkować budynek, wpasowując go w naturalne otoczenie. Aby nie naruszyć systemu korzeniowego drzew, część obiektu posadowiono na palach, rezygnując z tradycyjnych fundamentów. Co ciekawe, kolejną ulgą dla drzew ma być system napowietrzania i nawodnienia gleby, który pozwoli drzewom funkcjonować po wybudowaniu budynku. To nie pierwsze rodeo Architektów Plus 3, bowiem pracowali już nad projektami, które rodziły podobne wyzwania, jak chociażby przedszkole „Pod Dębami” w Warszawie.
Dodatkowym utrudnieniem były ograniczenia techniczne, w postaci istniejącej, podziemnej infrastruktury. Dlatego właśnie, część budynku została wyniesiona ponad poziom terenu. Co ciekawe, przestrzeń wejściową projektanci ukształtowali jako otwarty plac w podcieniu, stanowiący przedłużenie miejskiej przestrzeni.
Jak zaznaczają architekci pracowni Plus3, proces projektowy Nowej Sceny Teatru Siemaszkowej to efekt ciągłego dialogu i czasem trudnej dyskusji między zespołem architektów a inwestorem – artystami, w tym dyrektorem teatru, który stawiał nietypowe wyzwania, często zachęcając do kreatywnych rozwiązań:
– Ta otwartość i nieprecyzyjne, ale inspirujące potrzeby przypominały atmosferę teatralnej próby, gdzie poszukiwania bywają trudne, a efekt końcowy satysfakcjonujący – wspomina z uśmiechem architektka.
Nowoczesny kontrast
Architektura Nowej Sceny nie stara się naśladować XIX-wiecznego otoczenia.
– Świadomie postawiliśmy na kontrast. Nowoczesna forma i materiał, czyli prefabrykaty betonowe z charakterystyczną fakturą, zestawione z historyczną zabudową, mają wzajemnie podkreślać swoje cechy – tłumaczy Katarzyna Głażewska.
Dzięki temu każda z części, zarówno nowa, jak i historyczna, zachowuje swoją odrębność i charakter, a jednocześnie dobrze funkcjonują obok siebie.
Dwa nowe budynki
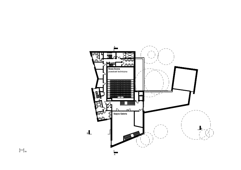
Nowa Scena to zespół dwóch budynków: głównego obiektu teatralnego oraz osobnego magazynu dekoracji. Co ciekawe, w centrum głównego budynku zaprojektowano podłużne, przeszklone foyer z widokiem na patio i zachowaną zieleń. Ta przestrzeń ma łączyć najważniejsze funkcje parteru, czyli prowadzić do dwóch sal teatralnych, kawiarni oraz wejścia do przestrzeni wystawienniczej. Projekt zakłada powstanie dwóch scen: większej typu black box nazwanej „Nową Sceną”, która mieści 180 osób, oraz mniejszej – „Młodej Sceny” dla 60 widzów. Co ciekawe, obie wyposażone są w nowoczesne systemy technologii scenicznej i zaprojektowane tak, by umożliwić różne konfiguracje przestrzeni i aranżacji wydarzeń.
Nie mogło także zabraknąć przestrzeni funkcjonalnej dla pracowników teatru, czyli chociażby aktorów. W budynku mieszczą się bowiem sala prób, garderoby, pokoje gościnne, zaplecze techniczne oraz pomieszczenia administracyjne.
Zdjęcia: materiały prasoweSzajna Galeria
Na piętrze projektu znajduje się Szajna Galeria. Jest to przestrzeń wystawiennicza z niezależnym wejściem, ulokowana w wysuniętym fragmencie budynku, który zawieszony nad przejściem zachęca do wejścia do środka. Co ważne, galeria poświęcona jest twórczości Józefa Szajny. Ten wybitny artysta, scenograf i reżyser w latach 50. współtworzył scenę Teatru im. Wandy Siemaszkowej.
– Jego ekspresyjne prace i eksperymentalne podejście do teatru na trwałe wpisały się w historię tej instytucji, inspirując kolejne pokolenia twórców. Galeria pełni funkcję miejsca spotkań artystów, edukacji artystycznej oraz dialogu między sztukami. Jej wyjątkowy klimat nadają Nowej Scenie wymiar nie tylko architektoniczny, ale i głęboko symboliczny – zaznacza Katarzyna Głażewska.
Oszczędność i funkcjonalność
Aranżacja wnętrz nowego budynku teatru opiera się na oszczędnej, funkcjonalnej palecie. Tło dla spektakli i wydarzeń tworzą czarne ściany i grafitowe posadzki.
– Głównym akcentem jest sufit foyer z nieregularnych, miedzianych lamelek, który subtelnie modeluje przestrzeń i nadaje jej niepowtarzalny charakter – mówi współautorka projektu.
Co ważne, duże przeszklenia wpuszczają do środka naturalne światło, a zwijane kotary pozwalają na całkowite zaciemnienie, przekształcając foyer w dodatkową scenę.
– Zależało nam na tym, aby foyer, jak i cały teatr nie zamykały się w jednoznacznych funkcjach. Stworzyliśmy przestrzeń performatywną, gdzie wydarzenia mogą odbywać się niemal wszędzie – podkreśla architektka.
Dodatkowo, architekci, pamiętając o dynamice teatru i tego, jak może się on zmieniać pod kątem np. festiwali, pozostawili otwartą przestrzeń na różnorodne, nieprzewidziane scenariusze artystyczne.
Drzwi prowadzące z foyer do obu sal teatralnych wykonano z surowej, przecieranej miedzi, co kontrastuje z ciemnym tłem ścian i podkreśla wejście na scenę. Całość zaprojektowano tak, by wnętrza były neutralnym, elastycznym tłem, do odgrywanych spektakli. Przestrzenie wspólne wykończono materiałami odpornymi na intensywną eksploatację, z uwzględnieniem wymagań technicznych: energooszczędne oświetlenie oraz elastyczne systemy sceniczne pozwalają płynnie dostosować przestrzeń do różnorodnych potrzeb artystów i widzów.
To nie wszystko, bowiem na dachach zaprojektowano tzw. dachy deszczowe, z grubą warstwą substratu retencyjnego (ok. 40–50 cm). To rozwiązanie umożliwi zatrzymanie wody i rozwój roślinności. Inne płaszczyzny dachu wyposażone zostały w instalacje fotowoltaiczne.
Skąd na to pieniądze?
Budowa Nowej Sceny Teatru im. Wandy Siemaszkowej w Rzeszowie dofinansowano ze środków Unii Europejskiej z programu Fundusze Europejskie dla Podkarpacia 2021-2027 z Europejskiego Funduszu Rozwoju Regionalnego. Całkowita wartość projektu wynosi ok. 85,4 mln złotych, natomiast dofinansowanie pokrywa ponad połowę tej kwoty, bo ok. 44,6 mln zł.
(oprac. MK)
Czytaj więcej:
Bezrobocie na Podkarpaciu najwyższe w kraju. Są powiaty z dwucyfrową stopą bezrobocia [MAPA]

![Ogromna bomba lotnicza w Rzeszowie. Do akcji wkroczyli saperzy [ZDJĘCIA]](https://rzeszow-news.pl/wp-content/uploads/2026/05/bomba-lotnicza-rzeszow1-218x150.jpg)




![Pożar kościoła na Podkarpaciu. Ogień strawił wnętrze świątyni, trwa ustalanie przyczyn [ZDJĘCIA]](https://rzeszow-news.pl/wp-content/uploads/2026/05/pozar-kosciol-przemysl1-218x150.jpg)


![Kumulacja w Rzeszowie! Aż dwa wnioski o referendum za odwołaniem Konrada Fijołka [PRZYCZYNY] referendum rzeszów konrad fijołek](https://rzeszow-news.pl/wp-content/uploads/2026/05/referendum-odwolanie-konrada-fijolka-02-218x150.jpg)









![Z Rzeszowa na europejskie tory. Igor Polak rusza na maraton wyścigowy Formuły 4 [ZDJĘCIA, WIDEO]](https://rzeszow-news.pl/wp-content/uploads/2026/05/Igor-Polak-Formula4-0-1-218x150.jpg)









![Zrób zakupy i bezpłatnie sprawdź stan zdrowia. „Zdrowie pod Kontrolą” w sobotę w Galerii Rzeszów [ZDJĘCIA] zdrowie pod kontrolą galeria rzeszów](https://rzeszow-news.pl/wp-content/uploads/2026/04/zdrowie-pod-kontrola-03-218x150.jpg)
![Uroczyste czepkowanie. Absolwenci Pielęgniarstwa i Pracy socjalnej WSIiZ odebrali dyplomy [ZDJĘCIA]](https://rzeszow-news.pl/wp-content/uploads/2026/05/IMGL3566-218x150.jpg)



![Nowa atrakcja dla aktywnych w Rzeszowie. Trwają prace w lesie na Słocinie [ZDJĘCIA]](https://rzeszow-news.pl/wp-content/uploads/2026/04/slocina-prace-las-218x150.jpg)

![Wyjątkowy tunel w powiecie rzeszowskim objęty ochroną. To turystyczna perełka [ZDJĘCIA]](https://rzeszow-news.pl/wp-content/uploads/2026/03/tunel-szklary1-218x150.jpg)







![Ogromna bomba lotnicza w Rzeszowie. Do akcji wkroczyli saperzy [ZDJĘCIA]](https://rzeszow-news.pl/wp-content/uploads/2026/05/bomba-lotnicza-rzeszow1-100x70.jpg)

